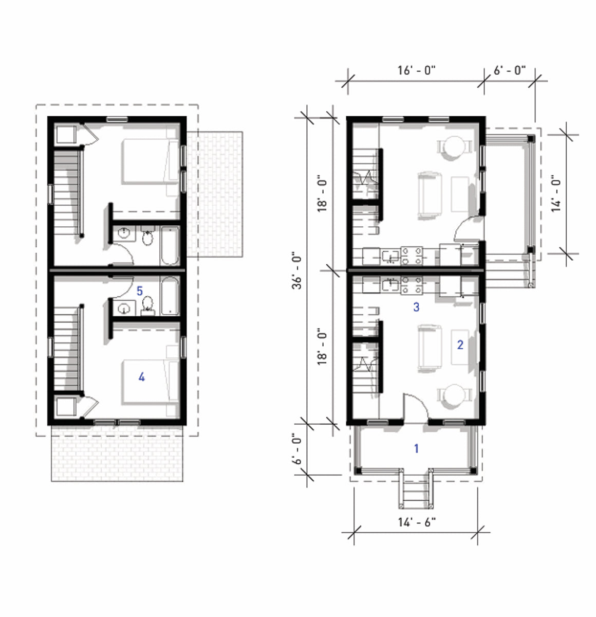
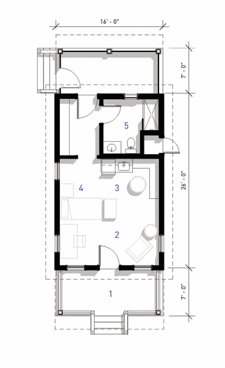
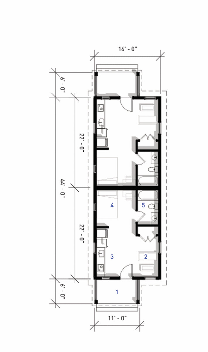
All Unit Types